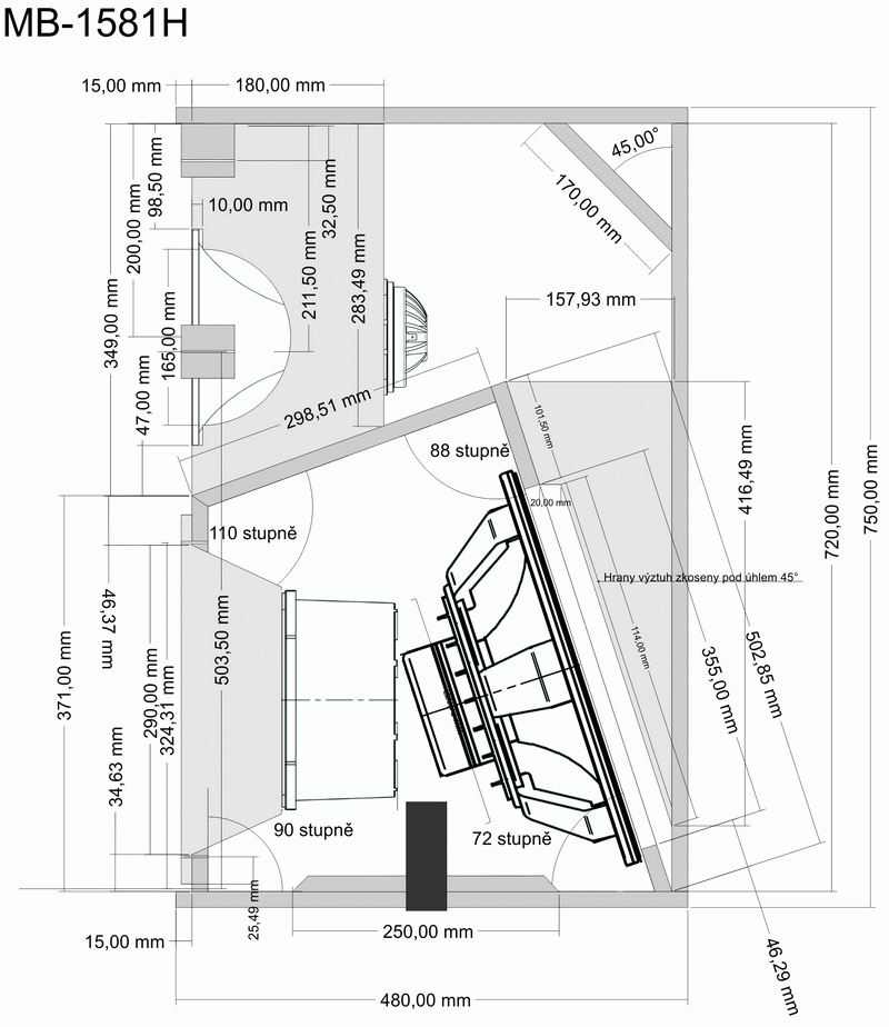
Всем привет! Помогите произвести расчетМид звена в этой конструкции кабинета. А именно заполнить данный для расчет в хорресп. Заранее благодарен. http://www.mikesound.com/stavba/MB1581H/mb1581h.htm
Всем привет! Помогите произвести расчетМид звена в этой конструкции кабинета. А именно заполнить данный для расчет в хорресп. Заранее благодарен. http://www.mikesound.com/stavba/MB1581H/mb1581h.htm
Социальные закладки