Страница 1 из 86 12311 ... Последняя
Показано с 1 по 20 из 1709

Тема: micro horn 12 или Martinsson THAM12

  1. #1
    Завсегдатай
    Автор темы

    Регистрация
    27.07.2010
    Адрес
    Каховка, Украина
    Возраст
    63
    Сообщений
    1,401

    По умолчанию micro horn 12 или Martinsson THAM12

    Я думаю, друзя, что назрела уже такая тема.
    Последняя разработка Димы Тумасова micro horn 12" всколыхнула ряды лабухов, которым часто приходится менять своё место дислокации. Маленький, компактный сабик с приличным звуковым давлением - это как раз то, что нужно нашему брату. Все спрашивают чертежик, которого пока нету, да и вряд ли мы дождёмся милости от разработчика. И это понятно, и никто его за это не осуждает.
    У Мартинссона есть варинты для 10" головы и для 15" головы, а вот как раз 12" варианта у Мартинссона почему-то и нету. Посему было принято решение восполнить этот пробел. Спасибо товаришу Андерсу Мартинссону за прекрасную идею.
    Но, ближе к делу.
    Посидев с недельку ато и две за компом и немного изучив HORNRESP я кажется нашел оптимальный вариант конструкции микрика.
    За основу был взят THAM10, который разработал товарищ Anders Martinsson.
    http://www.martinsson.cc/blog/index.php?m=02&y=11
    Но 10" динамик - это для нас слабовато, поэтому перехимичил его на 12". Первая попытка, результаты которй есть в соседней ветке была не совсем удачной, поэтому пришлось более скурпулёзно вникнуть в суть вопроса.
    Вот такая картинка получилась:
    Нажмите на изображение для увеличения. 

Название:	THAM12 M1201.jpg 
Просмотров:	3442 
Размер:	80.1 Кб 
ID:	126934
    Сразу скажу. Мой вариант несколько отличается от того, что сделал Дима. Это только общая картина.
    Предполагаемые габариты его: Ширина 44 см, Высота 55 см, Глубина 55 см.
    Картинки из Хорнреспа и более детальный чертёжик выложу немного позже. Ещё не успел проставить размеры.
    И ещё. Так как брэндовые головы мне недоступны изза их непомерной стоимости, рассчёты делались под голову MAG M1201, в надежде на то, что этот динамик со своей задачей справится так же успешно, как и в MTH-30.
    Последний раз редактировалось labuch60; 12.11.2011 в 17:34.

  2. #2
    Частый гость
    Регистрация
    26.01.2011
    Адрес
    Винницкая обл.
    Возраст
    61
    Сообщений
    177

    По умолчанию Re: micro horn 12 или Martinsson THAM12

    Это уже оптимистично. А почему в тумасова в лилипутке оклено ухо. Что, без ватину будет ведёрный звук?

  3. #3
    Завсегдатай
    Автор темы

    Регистрация
    27.07.2010
    Адрес
    Каховка, Украина
    Возраст
    63
    Сообщений
    1,401

    По умолчанию Re: micro horn 12 или Martinsson THAM12

    Цитата Сообщение от valvl63 Посмотреть сообщение
    А почему в тумасова в лилипутке оклено ухо
    Какое ухо? Где ты такое видел? Спроси у Тумасова.
    Да и вообще я не пытался копировать micro horn 12" Димы Тумасова.

  4. #4
    Завсегдатай
    Автор темы

    Регистрация
    27.07.2010
    Адрес
    Каховка, Украина
    Возраст
    63
    Сообщений
    1,401

    По умолчанию Re: micro horn 12 или Martinsson THAM12

    Итак, продолжаю выкладывать картинки:
    Нажмите на изображение для увеличения. 

Название:	001.jpg 
Просмотров:	1540 
Размер:	75.2 Кб 
ID:	126938 Нажмите на изображение для увеличения. 

Название:	002.jpg 
Просмотров:	1157 
Размер:	37.6 Кб 
ID:	126939 Нажмите на изображение для увеличения. 

Название:	003.jpg 
Просмотров:	1016 
Размер:	56.3 Кб 
ID:	126940 Нажмите на изображение для увеличения. 

Название:	004.jpg 
Просмотров:	1487 
Размер:	56.5 Кб 
ID:	126941 Нажмите на изображение для увеличения. 

Название:	005.jpg 
Просмотров:	1076 
Размер:	47.2 Кб 
ID:	126942 Нажмите на изображение для увеличения. 

Название:	006.jpg 
Просмотров:	1098 
Размер:	49.4 Кб 
ID:	126943 Нажмите на изображение для увеличения. 

Название:	007.jpg 
Просмотров:	1058 
Размер:	68.2 Кб 
ID:	126944 Нажмите на изображение для увеличения. 

Название:	008.jpg 
Просмотров:	1088 
Размер:	52.6 Кб 
ID:	126945
    Любая критика воспринимается адекватно и с благодарностью, так как я сам ещё не очень понимаю то, что я делаю.
    Огромная просьба к людям знающим Хорнресп. Проанализируйте и укажите на ошибки. Будем сообща исправлять.

  5. #5
    Частый гость
    Регистрация
    26.01.2011
    Адрес
    Винницкая обл.
    Возраст
    61
    Сообщений
    177

    По умолчанию Re: micro horn 12 или Martinsson THAM12

    Вот
    Миниатюры Миниатюры Нажмите на изображение для увеличения. 

Название:	143801141.jpg 
Просмотров:	1653 
Размер:	154.4 Кб 
ID:	126947  

  6. #6
    Частый гость
    Регистрация
    26.01.2011
    Адрес
    Винницкая обл.
    Возраст
    61
    Сообщений
    177

    По умолчанию Re: micro horn 12 или Martinsson THAM12

    А это, по моему, и есть готовый чертежик на двенашку
    Миниатюры Миниатюры Нажмите на изображение для увеличения. 

Название:	THAM_TRY_3_WITH_DISTANCE_AND_REFLECTOR.jpg 
Просмотров:	2003 
Размер:	71.1 Кб 
ID:	126948  

  7. #7
    Завсегдатай
    Автор темы

    Регистрация
    27.07.2010
    Адрес
    Каховка, Украина
    Возраст
    63
    Сообщений
    1,401

    По умолчанию Re: micro horn 12 или Martinsson THAM12

    Цитата Сообщение от valvl63 Посмотреть сообщение
    А это, по моему, и есть готовый чертежик на двенашку
    Нет. Это один из вариантов чертежа Андерса Мартинссона на 10".

    ---------- Добавлено в 20:09 ---------- Предыдущее сообщение в 20:06 ----------

    Цитата Сообщение от valvl63 Посмотреть сообщение
    Вот
    Похоже на тонкий войлок.

  8. #8
    Завсегдатай
    Автор темы

    Регистрация
    27.07.2010
    Адрес
    Каховка, Украина
    Возраст
    63
    Сообщений
    1,401

    По умолчанию Re: micro horn 12 или Martinsson THAM12

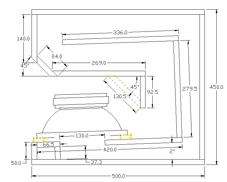
    Итак. Самое интересное. Прошу не пинать меня больно ногами, если что не так.
    Нажмите на изображение для увеличения. 

Название:	Martinsson THAM12 M1201.jpg 
Просмотров:	3311 
Размер:	175.3 Кб 
ID:	126950
    Поскольку в самом центре есть свободный объём, то я решил там разместить ручки для переноски, образованные продолговатыми вырезами, закрытыми коробами из 12 мм фанеры.
    Но прошу учесть, что это существует пока только на бумаге, если можно так сказать... Не стоит пока повторять этот вариант, так как он является предварительным и неизвестно что из этого получится....
    Последний раз редактировалось labuch60; 01.07.2011 в 18:22.

  9. #9
    Частый гость
    Регистрация
    26.01.2011
    Адрес
    Винницкая обл.
    Возраст
    61
    Сообщений
    177

    По умолчанию Re: micro horn 12 или Martinsson THAM12

    интересно, сколько такое творчество с тринадцатью кг мага будет весить. Может и немного тяжелое для одного человека, но компактное

  10. #10
    Завсегдатай
    Автор темы

    Регистрация
    27.07.2010
    Адрес
    Каховка, Украина
    Возраст
    63
    Сообщений
    1,401

    По умолчанию Re: micro horn 12 или Martinsson THAM12

    Предположительно килограммов 30, я так думаю... (+/-).
    Но я вижу что никому, кроме нас двоих эта тема не интересна.

  11. #11
    Частый гость
    Регистрация
    26.01.2011
    Адрес
    Винницкая обл.
    Возраст
    61
    Сообщений
    177

    По умолчанию Re: micro horn 12 или Martinsson THAM12

    насытились тапками, пережовуют

    ---------- Добавлено в 22:44 ---------- Предыдущее сообщение в 22:34 ----------

    если честно, то для меня предпочтительней Cubo 12 или новоиспеченный micro horn 12, чем Tapped horn 12. Но тапки, ИМХО, помощней будут. Но бывают случаи, когда приходится жертвовать чем то, или мощностью, или частоткой, или весом. Сколько музыкантов, столько и вариантов.

    ---------- Добавлено в 22:49 ---------- Предыдущее сообщение в 22:44 ----------

    Вот интересно, когда возьмутся выливать из пластика эти малютки и плюс неодимы, в сумме 10 кило ... Размечтался

  12. #12
    Завсегдатай
    Автор темы

    Регистрация
    27.07.2010
    Адрес
    Каховка, Украина
    Возраст
    63
    Сообщений
    1,401

    По умолчанию Re: micro horn 12 или Martinsson THAM12

    Цитата Сообщение от valvl63 Посмотреть сообщение
    в сумме 10 кило ... Размечтался
    Что за мания к уменьшению веса? Я сейчас работаю с тапком ТН 15". Вес у него приличный, но меня это нисколько не смущает. Главное для меня - чёткий, мощный низ. Правда есть подозрения что у THAM12 такого низа не будет, но по давлению он уделает любой саб. И Дима Тумасов это уже доказал.

  13. #13
    Завсегдатай Аватар для Tania
    Регистрация
    14.06.2006
    Адрес
    Татарстан, г. Зеленодольск
    Возраст
    45
    Сообщений
    1,405

    По умолчанию Re: micro horn 12 или Martinsson THAM12

    labuch60
    зачем размер увеличиваете и на 18мм фанере ???
    " Правда есть подозрения что у THAM12 такого низа не будет, но по давлению он уделает любой саб. И Дима Тумасов это уже доказал " - не понятно
    Динамик ставтье нормальный, а не на MAG-е и тоже всё уделает.
    https://vk.com/id73158862

  14. #14
    Частый гость
    Регистрация
    26.01.2011
    Адрес
    Винницкая обл.
    Возраст
    61
    Сообщений
    177

    По умолчанию Re: micro horn 12 или Martinsson THAM12

    А меня за многие годы тягули уже достали, надеюсь, как и множество лабухов

  15. #15
    Завсегдатай
    Автор темы

    Регистрация
    27.07.2010
    Адрес
    Каховка, Украина
    Возраст
    63
    Сообщений
    1,401

    По умолчанию Re: micro horn 12 или Martinsson THAM12

    Цитата Сообщение от Tania Посмотреть сообщение
    Динамик ставтье нормальный, а не на MAG-е и тоже всё уделает.
    Ну, понятно уже всем, что нормальный динамик имеет значение. Но он стОит в ТРИ раза дороже. На данный момент многие не могут себе позволить такую роскошь.
    А чем вам MAG так не угодил? Что вы все с таким презрением о нём отзываетесь? Как по мне - нормальный динамик.

  16. #16
    Частый гость
    Регистрация
    26.01.2011
    Адрес
    Винницкая обл.
    Возраст
    61
    Сообщений
    177

    По умолчанию Re: micro horn 12 или Martinsson THAM12

    як майка довга, то труси короткі

  17. #17
    Завсегдатай
    Автор темы

    Регистрация
    27.07.2010
    Адрес
    Каховка, Украина
    Возраст
    63
    Сообщений
    1,401

    По умолчанию Re: micro horn 12 или Martinsson THAM12

    Вот что кажет товарищ Хорнресп, если ему воткнуть B&C 12TBX100:
    Нажмите на изображение для увеличения. 

Название:	08 12ТВХ100.jpg 
Просмотров:	990 
Размер:	52.1 Кб 
ID:	126962 Нажмите на изображение для увеличения. 

Название:	01 12ТВХ100.jpg 
Просмотров:	1026 
Размер:	74.1 Кб 
ID:	126963 Нажмите на изображение для увеличения. 

Название:	03 12ТВХ100.jpg 
Просмотров:	943 
Размер:	55.1 Кб 
ID:	126964 Нажмите на изображение для увеличения. 

Название:	04 12ТВХ100.jpg 
Просмотров:	1483 
Размер:	57.3 Кб 
ID:	126965 Нажмите на изображение для увеличения. 

Название:	05 12ТВХ100.jpg 
Просмотров:	964 
Размер:	46.3 Кб 
ID:	126966 Нажмите на изображение для увеличения. 

Название:	06 12ТВХ100.jpg 
Просмотров:	1669 
Размер:	50.4 Кб 
ID:	126967 Нажмите на изображение для увеличения. 

Название:	07 12ТВХ100.jpg 
Просмотров:	941 
Размер:	64.9 Кб 
ID:	126968
    Расскажите мне, недалёкому: Сильно отличается от М1201?

  18. #18
    Завсегдатай
    Автор темы

    Регистрация
    27.07.2010
    Адрес
    Каховка, Украина
    Возраст
    63
    Сообщений
    1,401

    По умолчанию Re: micro horn 12 или Martinsson THAM12

    Цитата Сообщение от Tania Посмотреть сообщение
    зачем размер увеличиваете и на 18мм фанере ???
    Размер приблизительно такой же, как у микроХорна от ТДА. А фанеру можно и 15 мм? Я бы не хотел, чтобы вибрации были нежелательные.

  19. #19
    Частый гость
    Регистрация
    26.01.2011
    Адрес
    Винницкая обл.
    Возраст
    61
    Сообщений
    177

    По умолчанию Re: micro horn 12 или Martinsson THAM12

    Маговцы сами виноваты, что к их продукции так относятся. Я у них заимел 10 головок. Четыре м 1201. У одного низа отклеилась ЦШ от корзины. Погулял по нету, о браке услышал неоднократно. Хотя и у других изготовителей встречаются аналогичные случаи. Маги мне посоветовали отправить к ним на тестирование. Но у меня нет времени с этой возней. Сам приклеил. Но пришлось клеить несколько раз.
    Отрывало. У меня нет такого клея как надо. На остальные дины нет нареканий. Хотя присутствует страх, если дать им "прокататься", будут трещать по всем швам.

  20. #20
    Частый гость Аватар для Tonus
    Регистрация
    31.03.2010
    Адрес
    Санкт-Петербург
    Сообщений
    264

    По умолчанию Re: micro horn 12 или Martinsson THAM12

    THAM10 на EVM U204C19. Вес 15 кг.

    Нажмите на изображение для увеличения. 

Название:	THAM10.jpg 
Просмотров:	3266 
Размер:	555.2 Кб 
ID:	126975

Страница 1 из 86 12311 ... Последняя

Социальные закладки

Социальные закладки

Ваши права

  • Вы не можете создавать новые темы
  • Вы не можете отвечать в темах
  • Вы не можете прикреплять вложения
  • Вы не можете редактировать свои сообщения
  •